Lataa PDFLataa DWG
Palokatkovalitsin – tehokas työkalu suunnittelijoille ja asentajille.
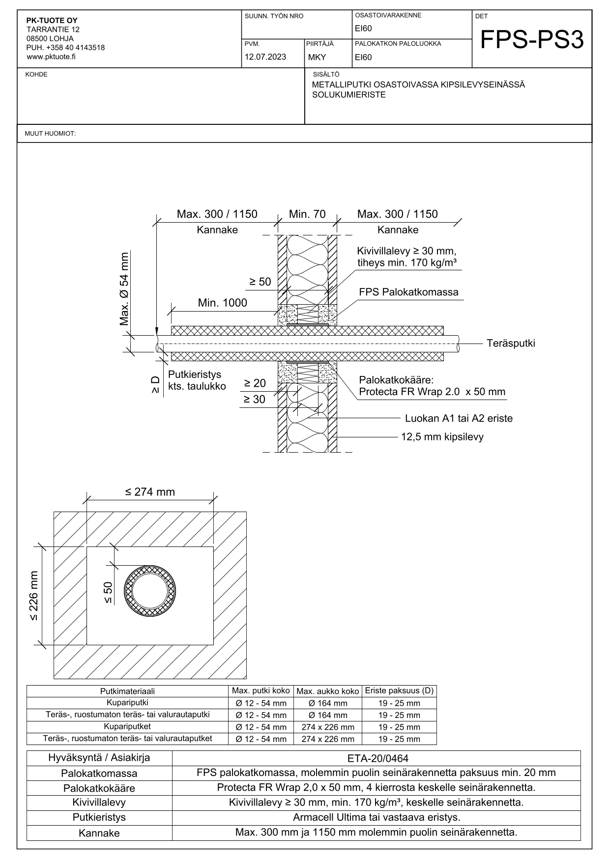
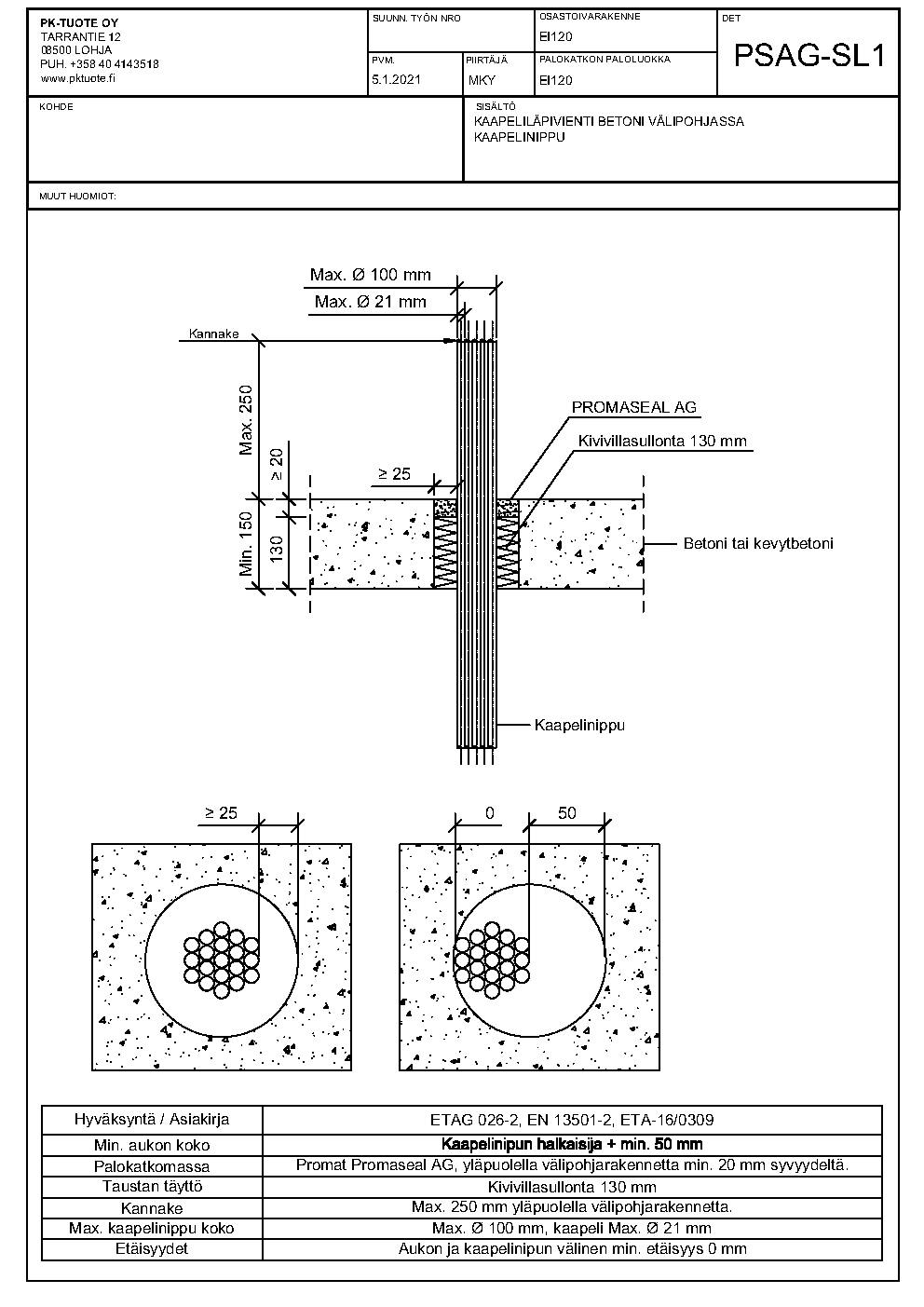
Flamron uudistunut asennusdetaljien päivityspaketti sisältää nyt yli 900 tarkasti testattua läpivientien asennusdetaljia. Päivityksen myötä Palokatkovalitsimeen on lisätty uudet valintapainikkeet CLT- ja PVP-elementeille sekä palopeltien ja ilmanvaihtorakenteiden läpivienneille, mikä laajentaa suunnittelun mahdollisuuksia entisestään.
Palokatkovalitsimen avulla voitte ladata kaikki asennusdetaljit suoraan PDF- ja DWG-muodossa, mikä helpottaa ja nopeuttaa suunnittelu- ja asennustyötä.
💡 Vinkki: Jos sopivaa asennusdetaljia ei löydy halutulla paloluokituksella, valitkaa silloin korkeamman paloluokan detalji. Asennusjärjestelmiä on polttotestattu jopa EI240-luokitukseen saakka.
Tarvitsetko lisätietoja?
PK-Tuotteen tekninen tuki auttaa kaikissa kysymyksissä:
📧 tekninentuki@pktuote.fi
📞 044 9751520 / Jyrki Viinanen
➡ Tutustu Palokatkovalitsimeen ja lataa detaljit helposti!



